Право аренды земельного участка и нежилое здание 40 кв.м.

Сохранить в PDF Печать
Стоимость

1 006 800 руб.

Показать номер телефона

Не указан
  • Категория: Земельные участки
Общая информация
Местонахождение
Реализация объекта

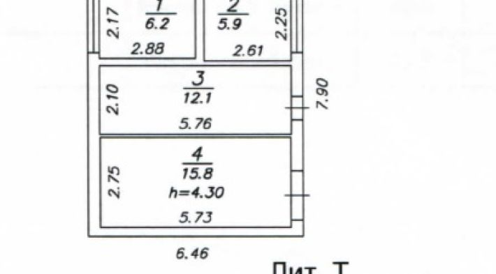
Здание. Назначение: нежилое здание.
Площадь: 40 кв.м.
Адрес: Российская Федерация, Иркутская область, г. Иркутск, ул. Мира, д. 16.
Кадастровый номер: 38:36:000009:21782.
Ограничение прав и обременение объекта недвижимости: не зарегистрировано.*
*Сведения указаны в соответствии с выпиской из Единого государственного реестра недвижимости об основных характеристиках и зарегистрированных правах на объект недвижимости от 18.10.2022 № 99/2022/500250966, прилагаемой к Документации (Раздел X).

Право аренды земельного участка с кадастровым номером 38:36:000009:24515. Адрес: Иркутская область, г. Иркутск. Площадь: 53 +/- 2 кв. м. Категория земель: земли населенных пунктов; виды разрешенного использования: коммунальное обслуживание.
Земельный участок с кадастровым номером 38:36:000009:24515 предоставлен Собственнику на праве аренды в соответствии с договором аренды земельного участка № 136-ОБ/20 от 26.10.2020, заключенного между Министерством имущественных отношений Иркутской области (Арендодатель) и Публичным акционерным обществом «Научно-производственная корпорация «Иркут» (Арендатор) сроком действия до 25.10.2030.

Регион

Иркутская область
  • Срок окончания подачи заявок: 26.08.2024 17:00
  • Размер задатка: 201360
  • Сведения об организаторе торгов: ООО "РТ-КАПИТАЛ"
  • Ссылка на извещение: Перейти
  • Обременение: Нет
  • Реализуется в рамках процедуры банкротства: Нет
  • Реализуется в рамках исполнительного производства: Нет

Возможно Вас заинтересует