Квартира № 69 г. Екатеринбург, ул. Красных командиров, д. 29

Сохранить в PDF Печать
Стоимость

5 980 000 руб.

Показать номер телефона

Не указан
  • Категория: Квартиры, комнаты
Общая информация
Местонахождение
Реализация объекта

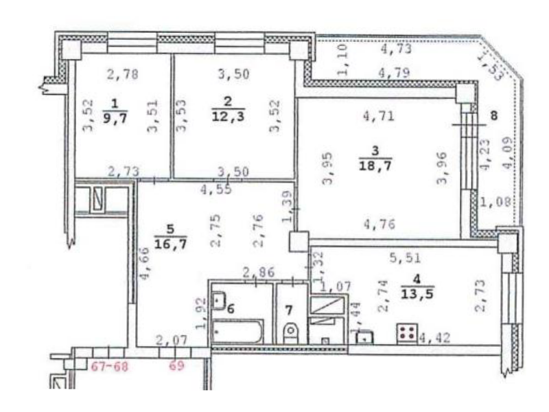
Площадь 75.3 м2

Кадастровый номер 66:41:0000000:32800

Помещение. Назначение: жилое помещение. Наименование: квартира.
Номер, тип этажа, на котором расположено помещение, машино-место: этаж № 9.
Кадастровый номер: 66:41:0000000:32800. Площадь: 75,3 кв.м.
Местоположение: Свердловская область, г. Екатеринбург, ул. Красных командиров, д. 29, кв. 69.
Описание конструктивных элементов жилого дома:
-
стены наружные: монолит
Состояние: здания хорошее
конструктивных элементов помещения хорошее
отделки помещения хорошее
Наличие лифтов да
Количество этажей 24
Год постройки здания 2009 г.
Общие сведения о квартире
Занимаемый этаж 9/24
Количество жилых комнат 3
Общая площадь, кв. м 75,3
Площадь подсобных помещений, в т. ч.: 34,6 кв. м
кухня 13,5 кв. м
ванная комната, туалет 4,4 кв. м
коридор, передняя 16,7 кв. м

Ограничение прав и обременение объекта недвижимости: не зарегистрировано.
Вид, номер и дата государственной регистрации права: собственности: № 66-66-01/025/2011-303 от 21.03.2011.
Существующие ограничения (обременения) права: не зарегистрировано.

Регион

Свердловская область

Район

Екатеринбург

Населенный пункт

Свердловская область
  • Срок окончания подачи заявок: 15.08.2022 17:00:00
  • Размер задатка: 598000
  • Сведения об организаторе торгов: ООО "РТ-КАПИТАЛ"
  • Ссылка на извещение: Перейти
  • Наименование группы компаний: ООО "РТ-КАПИТАЛ"
  • Обременение: Нет
  • Реализуется в рамках процедуры банкротства: Нет
  • Реализуется в рамках исполнительного производства: Нет

Возможно Вас заинтересует