Стоимость
5 079 000 руб.
Показать номер телефона
Не указан- ID: 2362
- Дата публикации: 2023-02-09 14:45:17
- Наименование продавца: Операторы витрины
- Категория: Квартиры, комнаты
Общая информация
Местонахождение
Реализация объекта
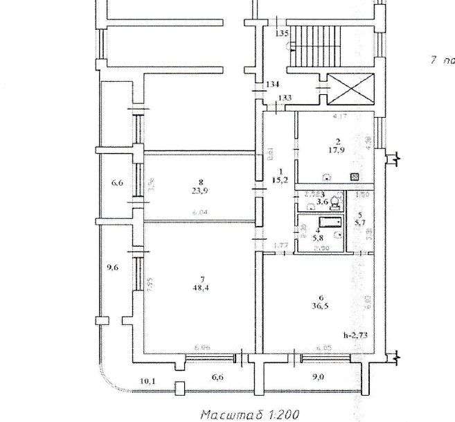
Площадь помещения
157 м2
Кадастровый номер
27:22:0040503:802
Регион Хабаровский край
Жилая площадь квартиры, кв. м: 108,8.
Площадь кухни, кв. м: 17,9.
Количество комнат: 3.
Этаж:5
Этажность дома:8
Наличие балкона/лоджии:4 лоджии
Состояние отделки: под чистовую отделку
Санузел: раздельный
Дата ввода в эксплуатацию: 2012 (вторая секция 2014).
Газоснабжение: центральное.
Материал стен: кирпичные.
Дом расположен в районе преимущественно жилой застройки. В непосредственной близости к остановке общественного транспорта.
Регион
Хабаровский край- Срок окончания подачи заявок: 02.03.2023 15:00:00
- Размер задатка: 677200
- Сведения об организаторе торгов: ООО "РТ-КАПИТАЛ"
- Ссылка на извещение: Перейти
- Обременение: Нет
- Реализуется в рамках процедуры банкротства: Нет
- Реализуется в рамках исполнительного производства: Нет