3-комнатная квартира №124 г. Комсомольск-на-Амуре

Сохранить в PDF Печать
Стоимость

5 073 750 руб.

Показать номер телефона

Не указан
  • Категория: Квартиры, комнаты
Общая информация
Местонахождение
Реализация объекта

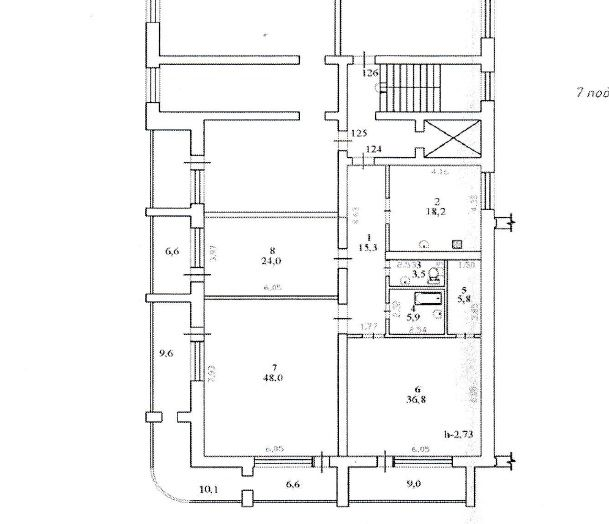
Площадь помещения 157.5 м2
Кадастровый номер 27:22:0040503:755
Регион Хабаровский край
 
Жилая площадь квартиры, кв. м: 108,8.
Площадь кухни, кв. м: 18,2.
Количество комнат: 3.
Этаж:2
Наличие балкона/лоджии:4 лоджии
Состояние отделки: под чистовую отделку
Санузел: раздельный
Дата ввода в эксплуатацию: 2012 (вторая секция 2014).
Газоснабжение: центральное.

Дом расположен в районе преимущественно жилой застройки. В непосредственной близости к остановке общественного транспорта.

  • Срок окончания подачи заявок: 11.05.2023 15:00:00
  • Размер задатка: 676500
  • Сведения об организаторе торгов: ООО "РТ-КАПИТАЛ"
  • Ссылка на извещение: Перейти
  • Обременение: Нет
  • Реализуется в рамках процедуры банкротства: Нет
  • Реализуется в рамках исполнительного производства: Нет

Возможно Вас заинтересует