Нежилое помещение 344,3 кв.м. г. Муром

Сохранить в PDF Печать
Стоимость

2 353 084 руб.

Показать номер телефона

Не указан
  • Категория: Коммерческая недвижимость
Общая информация
Местонахождение
Реализация объекта

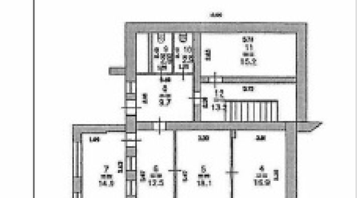
К продаже представлено нежилое помещение общей площадью 344,3 кв.м.,  является пристроенным помещением к многоквартирному жилому дому,  кадастровый номер 33:26:050215:143.

Номер, тип этажа, на котором расположено помещение, машино-место: Этаж № 1,2.

1 этаж (площадь 171,3 кв.м) 2 этаж (площадь 173 кв.м).
Высота потолков: 1 этаж - 3 м, 2 этаж - 2,9 м.
Кадастровый номер: 33:26:000000:1217.

Здание, в котором находится помещение расположено на земельном участке кад.№ 33:26:050215:747.


Территория участка благоустроена, частично заасфальтирована, имеются площадки для проезда и парковки для автотранспорта. Подъездные пути асфальтовые.

В ближайшем окружении  имеется вся необходимая для делового и административного центра инфраструктура (административные здания, объекты торговли, культуры; медицинские учреждения; школы, детские сады).


Расстояние до ближайшей остановки городского транспорта:«Вербовский» – 320 м.

Ограничение прав и обременение объекта недвижимости: не зарегистрировано. *

* Сведения указаны в соответствии с выпиской из Единого государственного реестра недвижимости об основных характеристиках и зарегистрированных правах на объект недвижимости от 11.06.2024 № КУВИ-001/2024-156276691.

  • Срок окончания подачи заявок: 02.07.2025 15:00
  • Размер задатка: 294135.5
  • Сведения об организаторе торгов: ООО "РТ-КАПИТАЛ"
  • Ссылка на извещение: Перейти
  • Обременение: Нет
  • Реализуется в рамках процедуры банкротства: Нет
  • Реализуется в рамках исполнительного производства: Нет

Возможно Вас заинтересует