Недвижимое имущество с технологическим оборудованием

Сохранить в PDF Печать
Стоимость

97 131 152 руб.

Показать номер телефона

Не указан
  • Категория: Коммерческая недвижимость
Общая информация
Местонахождение
Реализация объекта

Лот№1 Недвижимое имущество с технологическим оборудованием, в том числе:
• Объекты, сданные в эксплуатацию:
- Газопровод среднего и низкого давления (протяженность 586,2 м.) № 31:26:1901002:33;
- Материальный склад № 31:26:1901002:21.
• Объекты незавершенные строительством:
- АБК и Производственный комплекс №31:26:1901002:20;
- Дезбарьер №31:26:1901002:18;
- Дезбарьер №31:26:1901002:19;
- Дезбарьер №31:26:1901002:23 (проходная);
- Дезбарьер №31:26:1901002:24 (проходная);
- Котельная №31:26:1901002:29;
- Скважина №31:26:1901002:22;
- Скважина №31:26:1901002:26;
- Скважина №31:26:1901002:27;
- Скважина №31:26:1901002:28;
- Склад временного назначения;
- Станция водоподготовки №31:26:1901002:25.
• Право долгосрочной аренды на земельный участок кадастровый №31:26:1901002:13
• Оборудование 2012 года выпуска к установке:
- Котел паровой GX 6000 P до 12 кг/см2, мощностью 6977 кВт.;
- Котел паровой GX 6000 P до 12 кг/см2, мощностью 6977 кВт.;
- Горелка газовая BLU 8000.1 MD (2000-8500 кВт);
- Горелка комбинированная Multicalor P 800.1 MD (2000-8500 кВт);
- Мембранная система очистки воды;
- Экономайзер ECXV 60-70.

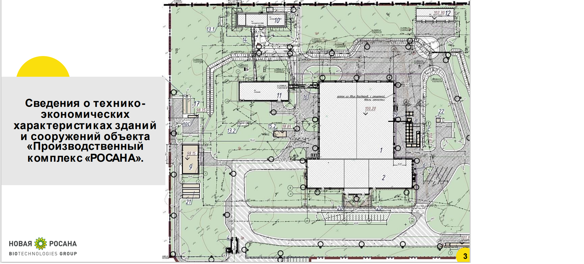
В состав главного корпуса входят два цеха и административный корпус с санпропускниками размер в плане 36,0 х 102,0 м Также складские помещения для готовой продукции размер в плане 84,0 х 102,0 м.
Производственный корпус завода два цеха представляет собой многопролетное одноэтажное высотой до низа несущих конструкций 7,5
метра и 17,7 метра.

Административный корпус с санпропускником представляет собой много пролетное здание состоящее из трех отсеков. Общая длина здания 3 х отсеков 96 метров. Шаг колонн в продольном направлении 6 м пролеты 6 м Высота этажей 4 м.

Цех водоподготовки. Расчетный расход воды по водоводу - 2952м3/сут.
состоит из трех частей:
1. Здание цеха.
2. Резервуары резервной воды.
3. Пожарные резервуары.
Источником пароснабжения является отдельно стоящая котельная с 4 мя паровыми котлами «GX 6000 » производства «ICI» Италия паропроизводительностью 10 24 т ч каждый. Общая паропроизводительность котельной составляет 40 96 т ч насыщенного пара. Тепловая мощность котельной составляет 27 908 МВт фактически установлено только два котла. Проектируемая котельная здание размерами в плане 18 00×48 0 м Высота до низа несущих конструкций 6 5 м.

На сегодняшний день, готовность объектов составляет 85-90%.Следующие производственные здания и сооружения комплекса:
Главный корпус.
Цех водоподготовки.
Котельная.
Дезбарьеры с пунктами охраны
Технологическая галерея.
Галерея трубопроводов.
Эстакада трубопроводов.
Сети водоснабжения и канализирования, пожарный трубопровод
Водозабор питьевого назначения (4скважины).

Введены в эксплуатацию как объект завершенного строительства здание склада МТС с мини котельной и газораспределительная сеть среднего и низкого давления.
Получены все необходимые согласования и разрешения на строительство Объекта (выдановмае2020г.), проектная документация строительства комплекса имеет положительное заключение государственной экспертизы полученное в 2010г. и положительное заключение на реконструкцию комплекса, полученное в 2020г.
Заключен договор на поставку газа в необходимом объеме до 2022г. - лимиты подтверждены. Подведенная электрическая мощность 200кВт, 0,4кВ (на период строительства).

Так же в продаже имеется:
Оборудование линии функционального кератина пера (ФКП) 2012 года выпуска;
Оборудование линии функционального мясного протеина (ФМП) 2012 года выпуска;
Повысительная насосная станция Hyhdo MX S001 2 CR1-3, 2012 года выпуска;
Универсальный гидролизер -экструдер, 2012 года выпуска;
Оборудование, бывшее в употреблении, 2010- 2011 года выпуска.

  • Срок окончания подачи заявок: 05.12.2022 10:00:00
  • Размер задатка: 19426230.4
  • Сведения об организаторе торгов: ООО "ЭТП"
  • Ссылка на извещение: Перейти
  • Обременение: Нет
  • Реализуется в рамках процедуры банкротства: Нет
  • Реализуется в рамках исполнительного производства: Нет

Возможно Вас заинтересует