Имущественный комплекс база отдыха г.Геленджик

Сохранить в PDF Печать
Стоимость

7 361 500 руб.

Показать номер телефона

Не указан
  • Категория: Имущественные комплексы
Общая информация
Местонахождение
Реализация объекта

имущество, находящееся в собственности ПАО Сигнал

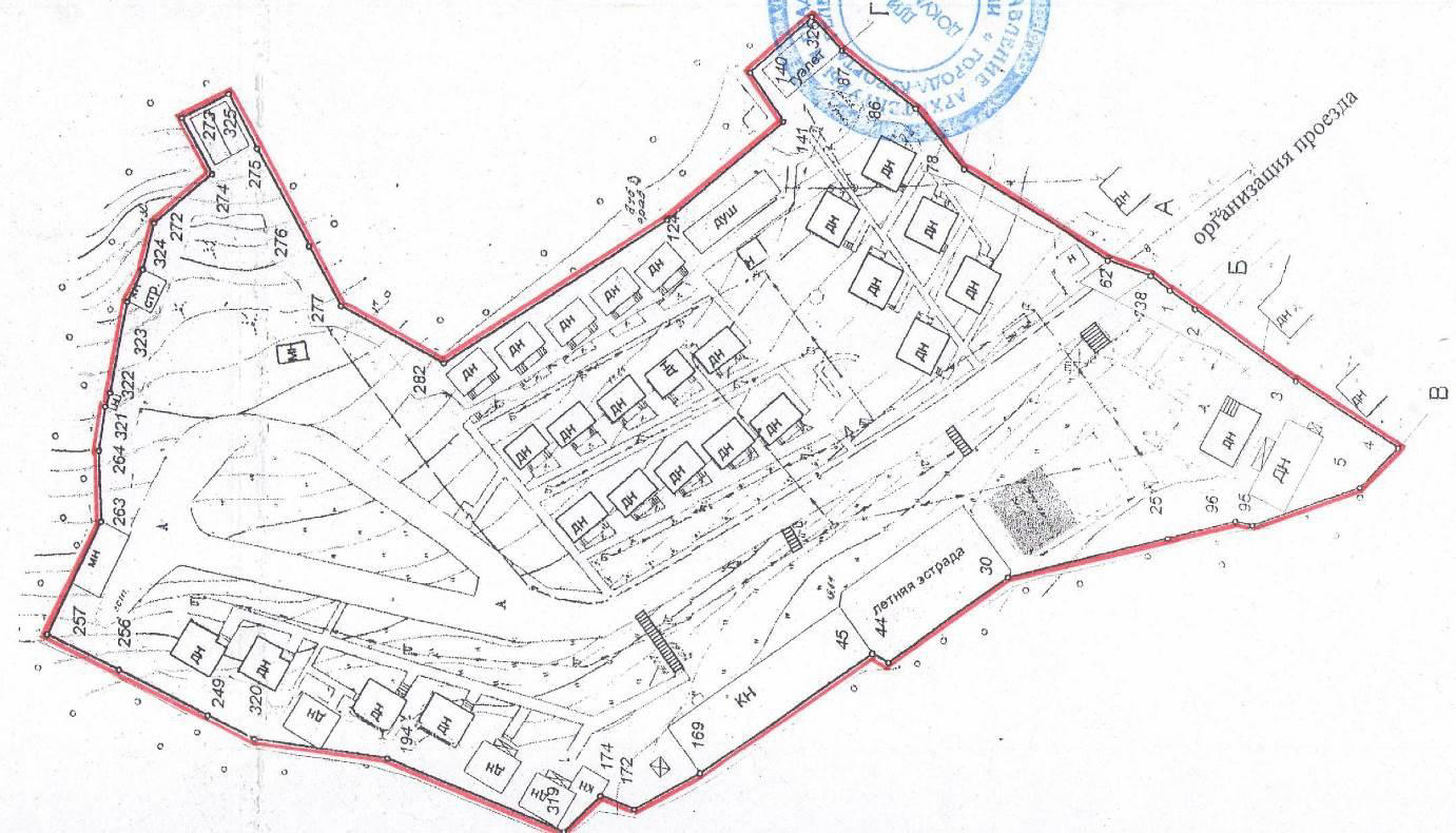
Имущественный комплекс (здания, сооружения) на
земельном участке с кадастровым номер: 23:40:1001006:4, площадь: 11 282 +/- 37 кв.м.
Адрес: установлено относительно ориентира, расположенного в границах участка. Почтовый адрес ориентира: Краснодарский край, г. Геленджик, с. Архипо-Осиповка, Сосновая щель.
Категория земель: земли населенных пунктов. Виды разрешенного использования: для эксплуатации зданий базы отдыха «Сосновый бор».
Договор аренды от 04.03.2016 № 4000005161, срок действия 49 лет, с 02.03.2016 до 02.03.2065г.
Вид, номер и дата государственной регистрации права: аренда, весь объект; 08.04.2016
№ 23-23/012-23/205/805/2016-6923/2.

База находится посреди лесного массива, территория базы граничит с небольшой рекой, с северной стороны к территории участка примыкает небольшой горный массив.
База расположена примерно в 1,5 км от ближайшей улицы (ул. Санаторная), обеспечивающей доступ к населенному пункту и по которой можно добраться до моря. Расстояние до ближайшего пляжа около 3 750 м.
Артезианская скважина.

Регион

Краснодарский край

Район

Геленджик

Населенный пункт

Краснодарский край
  • Условия участия: в соответствии с аукционной документацией
  • Размер задатка: 1472300
  • Сведения об организаторе торгов: ООО "Рт-Капитал"
  • Ссылка на извещение: Перейти
  • Наименование группы компаний: ПАО Ставропольский завод "СИГНАЛ"
  • Обременение: Нет
  • Реализуется в рамках процедуры банкротства: Нет
  • Реализуется в рамках исполнительного производства: Нет

Возможно Вас заинтересует